Quadrilocale in vendita

Firenze, Via Vasco de Gama - Rifredi
€ 320.000
Prezzo aggiornato
4 locali 4 locali
113 Mq 113 Mq
1 bagno 1 bagno

Quadrilocale in vendita

Firenze, Via Vasco de Gama - Rifredi

Descrizione annuncio

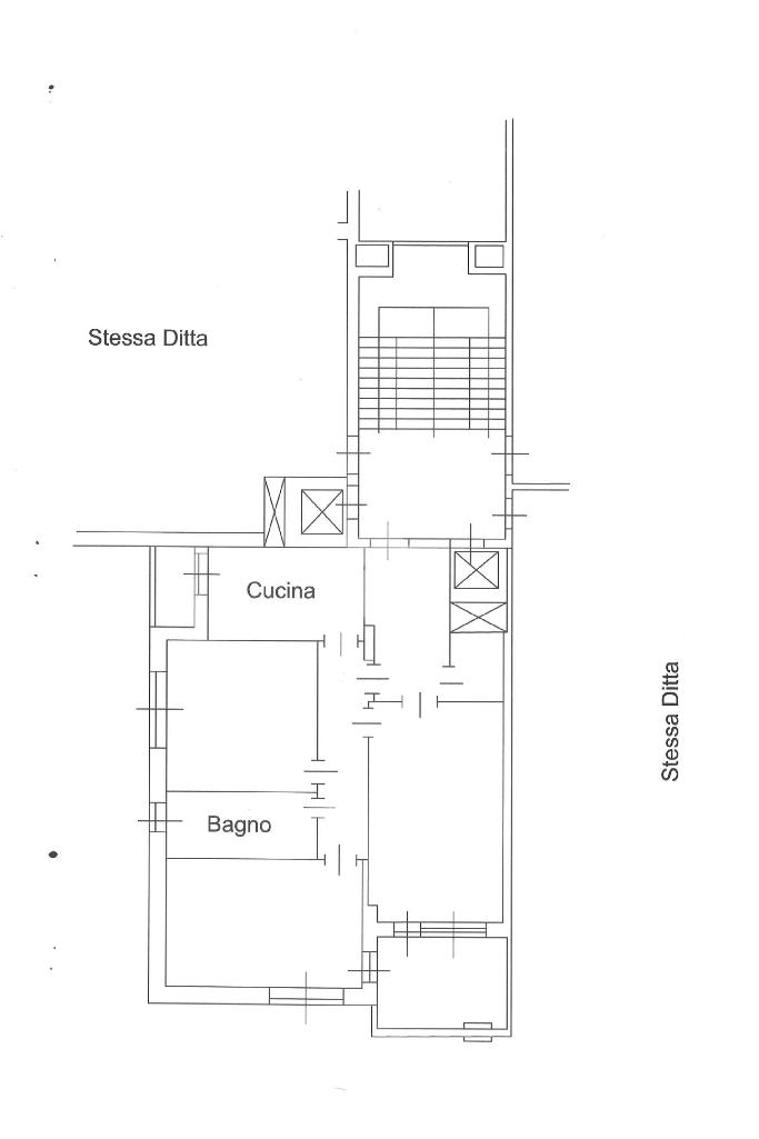
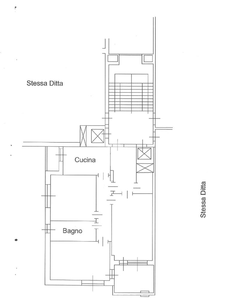
Al quinto piano con doppio ascensore di un bel condominio libero su 4 lati proponiamo un appartamento in doppia esposizione di 4 vani con servizi e accessori tra cui una soleggiata terrazza abitabile e un balcone per complessivi 113 mq oltre esclusivo garage di 14 mq compreso nel prezzo.

L'immobile internamente è composto da un largo ingresso con ripostiglio, un ampio soggiorno, una cucina abitabile con balcone privato, bagno finestrato con vasca e 2 camere da letto matrimoniali.

L'unità si presenta in discreto stato dal momento che sono stati sostituiti i vecchi infissi esterni con altri nuovi a taglio termico, di rilievo anche la presenza della climatizzazione diffusa in ogni ambiente ad eccezione della cucina. Da considerare alcuni interventi di restauro o ammodernamento come, per esempio, agli impianti tecnologici e ai rivestimenti.

L'autorimessa si trova al piano interrato, è custodita da un cancello automatico ed è adatta a vetture utilitarie.

Possibilità di acquistare a parte un altro garage di 22 mq nelle vicinanze a euro 50.000,00.

La consegna è da concordare tra i 3 e i 6 mesi dalla proposta d'acquisto.

Mostra tutto

Nelle vicinanze

Trasporto pubblico Trasporto pubblico
stazione di Firenze Rifredi
stazione di Firenze Rifredi
60 m
stazione di Firenze Statuto
stazione di Firenze Statuto
1,7 Km
Dalmazia
Dalmazia
560 m
Vittorio Emanuele II
Vittorio Emanuele II
590 m
Rifredi FS Vasco de Gama
Rifredi FS Vasco de Gama
50 m
Ricariche auto elettriche Ricariche auto elettriche
Eneldrive (ex SILFI) Stazione Firenze Rifredi
120 m
Eneldrive (ex SILFI) Istituto Industriale Leonardo da Vinci
410 m
Coop Novoli | EnelX
670 m
Eneldrive Del Prete
710 m
Eneldrive Morgagni
720 m
Scuole Scuole
Scuola Secondaria di I Grado "Calamandrei"
190 m
Istituto Professionale Leonardo da Vinci
290 m
Istituti Paritari Cavour Pacinotti
350 m
Scuola primaria Don Minzoni
570 m
Scuole
590 m
Farmacia Farmacia
Farmacia
300 m
Mellini
380 m
Farmacia Rifredi
440 m
delle Panche
630 m
SS. Annunziata
810 m
Ospedali Ospedali
Poliambulatorio Morgagni (CUP)
540 m
C.T.O.
1,0 Km
Ospedali
1,0 Km
Centro traumatologico ortopedico - CTO
1,0 Km
Unità spinale
1,1 Km
Supermercati Supermercati
Lidl
380 m
Conad
460 m
Conad City
580 m
Coop
610 m
Penny
740 m
Negozi Negozi
Negozi
220 m
La Gastronomia
260 m
Babyland
360 m
AF
370 m
La Bottega del Pane
380 m
Bar Bar
Bar
130 m
Bar Gherardini
520 m
Caffè de Paris
570 m
Bar Franco
590 m
Pin Up Cafè
600 m
Ristoranti Ristoranti
Fiorenza
200 m
Ristoranti
210 m
Il Maccheroncino
300 m
Il Pesce Pazzo
310 m
Hosteria dell'Altra Volta
340 m
Mostra tutto

Caratteristiche

Rif.:
61168570
Piano:
5 di 8 con ascensore (Piano alto)
Box:
1
Terrazzi:
2
Camere da letto:
2
Arredamento:
Assente
Mostra tutto
Prezzo Prezzo
€ 320.000
Rata mutuo Rata mutuo
€ 1.494 / mese
Spese annue Spese annue
€ 3.000
Proponi il tuo prezzoProponi il tuo prezzo

Classe Energetica

G
G
G
G
G
G
G
G
G
EP invernale del fabbricato:
EP estiva del fabbricato:
Anno di costruzione:
1970
Riscaldamento:
Centralizzato
Tipo impianto:
A radiatori
Tipo alimentazione:
Metano

Prezzo ridotto di €1 (4%%)

Ti interessa visionare l'immobile?

Fissa un appuntamento  Fissa un appuntamento

Richiedi informazioni

Clicca su Leggi per aprire l'informativa
* Questi campi sono obbligatori

Calcola il tuo mutuo

Semplice e senza impegno
Anticipo

( % )
Mutuo

( % )

pochi semplici passi

inserisci i tuoi dati
Questionario completato
Grazie per aver richiesto un appuntamento senza impegno con un nostro Consulente del Credito e Assicurativo.

Hai inserito correttamente tutti i dati necessari e a breve riceverai una e-mail con un link da convalidare per inviare i tuoi dati.
Affiliato
Studio Novoli Sas
Via Di Novoli, 81 50127 Firenze (FI)

Il nostro staff


  • Andrea Sani
    Affiliato

  • Ylenia Graziano
    Coordinatrice
Via Di Novoli, 81 50127 Firenze (FI)
Zona: Novoli - Regione Toscana - Guidoni
Mostra su mappa
Orari: lunedì - venerdì 9.00 - 13.00 / 15.30 - 20.00; sabato 9.00 - 13.00
Affiliato
Studio Novoli Sas
Via Di Novoli, 81 50127 Firenze (FI)

2026 Tecnocasa Franchising S.p.A. - P. IVA 08365160152 - Via Monte Bianco 60/A 20089 Rozzano (MI). Ogni agenzia ha un proprio titolare ed è autonoma. Privacy policy | Policy utilizzo | Cookie policy