Trilocale in vendita

Firenze, Via Giacomo Carissimi - Novoli
€ 245.000
3 locali 3 locali
77 Mq 77 Mq
1 bagno 1 bagno

Trilocale in vendita

Firenze, Via Giacomo Carissimi - Novoli

Descrizione annuncio

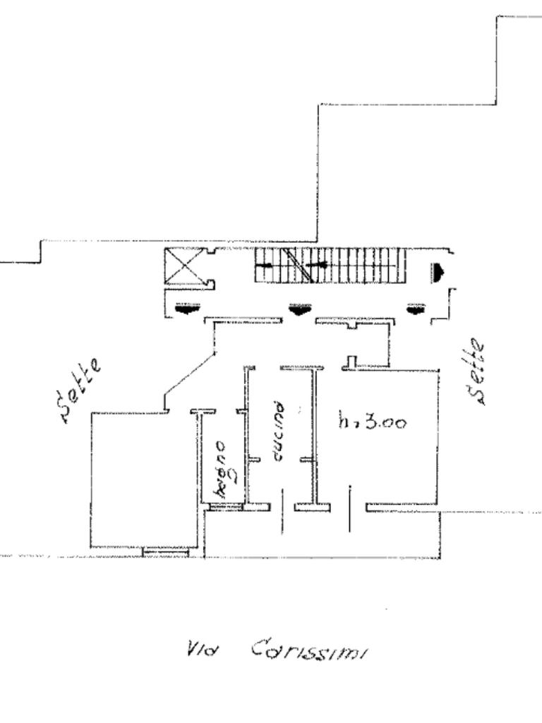
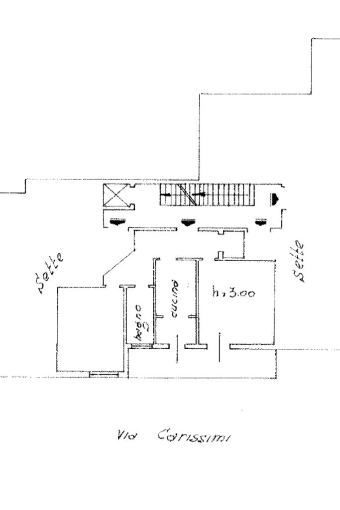
Al secondo piano di un bel condominio dalle facciate appena restaurate proponiamo un appartamento di 3 vani oltre servizi e accessori per complessivi 77 mq commerciali.

L'immobile è composto da un ingresso, una cucina abitabile, un soggiorno e una camera da letto matrimoniale oltre a un bagno finestrato con vasca e un ripostiglio. Completa la descrizione una terrazza abitabile accessibile da due stanze su tre.

Il riscaldamento è centralizzato ed è compreso nelle spese condominiali ammontanti a euro 1.200 circa all'anno.

Le condizioni interne sono accettabili in quanto l'unità risulta già abitabile, tuttavia si possono considerare interventi di restauro agli impianti tecnologici e un ammodernamento agli infissi.

La consegna è da concordare con la proprietà in base ai suoi tempi di trasferimento, tuttavia si può stimare l'atto definitivo entro settembre 2026.

Mostra tutto

Nelle vicinanze

Trasporto pubblico Trasporto pubblico
stazione di Firenze Rifredi
stazione di Firenze Rifredi
1,5 Km
stazione di Firenze Porta al Prato
stazione di Firenze Porta al Prato
1,9 Km
Novoli - Regione Toscana
Novoli - Regione Toscana
140 m
San Donato - Università
San Donato - Università
350 m
Carissimi
Carissimi
100 m
Ricariche auto elettriche Ricariche auto elettriche
Eneldrive (ex SILFI) dell'Elba
290 m
Eneldrive (ex SILFI) Corelli
360 m
EnelX EVA+ Firenze Guidoni
660 m
Eneldrive (ex SILFI) Lippi e Macia
740 m
Eneldrive Del Prete
810 m
Scuole Scuole
Istituto Superiore per servizi del Turismo, Socio Sanitari "Sassetti Peruzzi"
240 m
Scuola Secondaria di I Grado "Beato Angelico"
370 m
Scuole
380 m
Scuola Primaria "Cristoforo Colombo"
380 m
Scuola Primaria "Vamba"
580 m
Farmacia Farmacia
Parafarmacia Esselunga
80 m
San Marco
90 m
del Barco
570 m
SS. Annunziata
680 m
Novoli
690 m
Ospedali Ospedali
Poliambulatorio Morgagni (CUP)
1,8 Km
C.T.O.
2,4 Km
Ospedali
2,4 Km
Centro traumatologico ortopedico - CTO
2,4 Km
Unità spinale
2,5 Km
Supermercati Supermercati
Esselunga
80 m
Coop
540 m
Lidl
880 m
Esselunga via galliano
970 m
Simply Market
1,0 Km
Negozi Negozi
Negozi
90 m
Gabriele e Silvia
160 m
Fiorenza
830 m
Minù
840 m
Pane Amore e Fantasia
890 m
Bar Bar
Pere & Cioccolato
310 m
Bar
430 m
Bar One
620 m
Polo delle Scienze Sociali - Bar
660 m
Cartabianca Cafè
670 m
Ristoranti Ristoranti
Osteria Di Poneta
170 m
Ristorante Pizzeria Da Franco
200 m
Bamboo Sushi Wok
230 m
Bamboo
320 m
Movida
410 m
Mostra tutto

Caratteristiche

Rif.:
61183916
Piano:
2 di 6 con ascensore (Piano basso)
Terrazzi:
1
Camere da letto:
1
Arredamento:
Parziale
Condizionamento:
Assente
Mostra tutto
Prezzo Prezzo
€ 245.000
Rata mutuo Rata mutuo
€ 1.144 / mese
Spese annue Spese annue
€ 1.200
Proponi il tuo prezzoProponi il tuo prezzo

Classe Energetica

G
G
G
G
G
G
G
G
G
EP invernale del fabbricato:
EP estiva del fabbricato:
Anno di costruzione:
1970
Riscaldamento:
Centralizzato
Tipo impianto:
A radiatori
Tipo alimentazione:
Metano

Ti interessa visionare l'immobile?

Fissa un appuntamento  Fissa un appuntamento

Richiedi informazioni

Clicca su Leggi per aprire l'informativa
* Questi campi sono obbligatori

Calcola il tuo mutuo

Semplice e senza impegno
Anticipo

( % )
Mutuo

( % )

pochi semplici passi

inserisci i tuoi dati
Questionario completato
Grazie per aver richiesto un appuntamento senza impegno con un nostro Consulente del Credito e Assicurativo.

Hai inserito correttamente tutti i dati necessari e a breve riceverai una e-mail con un link da convalidare per inviare i tuoi dati.
Affiliato
Studio Novoli Sas
Via Di Novoli, 81 50127 Firenze (FI)

Il nostro staff


  • Andrea Sani
    Affiliato

  • Ylenia Graziano
    Coordinatrice
Via Di Novoli, 81 50127 Firenze (FI)
Zona: Novoli - Regione Toscana - Guidoni
Mostra su mappa
Orari: lunedì - venerdì 9.00 - 13.00 / 15.30 - 20.00; sabato 9.00 - 13.00
Affiliato
Studio Novoli Sas
Via Di Novoli, 81 50127 Firenze (FI)

2026 Tecnocasa Franchising S.p.A. - P. IVA 08365160152 - Via Monte Bianco 60/A 20089 Rozzano (MI). Ogni agenzia ha un proprio titolare ed è autonoma. Privacy policy | Policy utilizzo | Cookie policy